Fixed Price £190,000
Leasehold
Fairlawns
Shoreham-By-Sea, West Sussex, BN43 6BW
- 1
- 1
- 1
Information
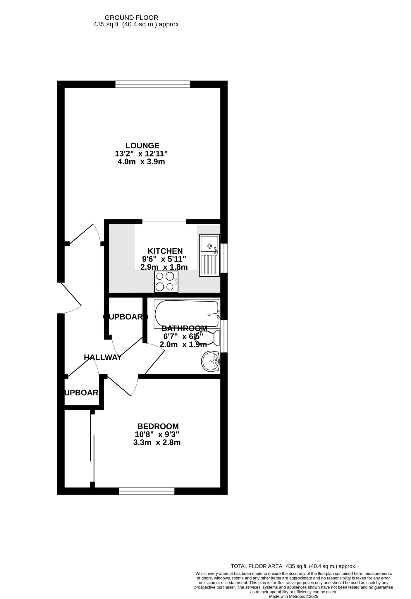
This inviting one-bedroom ground floor retirement apartment in Fairlawns, Shoreham-By-Sea, offers comfortable living for over 55s with communal gardens and parking.
Features
- Ground Floor Retirement Apartment
- Great Location Opposite Buckingham Park
- Double Bedroom With Wardrobe
- Communal Parking
- No Chain
- Communal Gardens
- Over 55's
- 24 Hour Care Line Support System
This well-presented one-bedroom ground floor retirement apartment is situated in Fairlawns, Shoreham-By-Sea, offering a comfortable and convenient lifestyle for those over 55. Located directly opposite Buckingham Park, residents can enjoy easy access to green spaces and local amenities, fostering a sense of community and well-being. The property is offered with no onward chain.
The apartment features a thoughtfully designed living space that maximises comfort and practicality. The reception room provides a welcoming area for relaxation and entertaining, benefiting from natural light. The apartment includes a generous double bedroom, complete with a fitted wardrobe, offering ample storage and a peaceful space.
Fairlawns offers a range of communal benefits - The development includes well-kept communal gardens, providing a pleasant outdoor environment for residents to enjoy. Communal parking is available, adding to the convenience for both residents and visitors. For added peace of mind, a 24-hour care line support system is in place, ensuring assistance is readily available when needed. This feature underscores the commitment to providing a secure and supportive living environment.
This apartment represents an excellent opportunity for those seeking a manageable and secure home within a vibrant community. The location opposite Buckingham Park is a significant advantage, offering a park right on the doorstep. The property's status as a ground floor apartment adds to its accessibility and appeal. With its practical layout, communal amenities, and dedicated support system, this home is perfect for individuals looking to enjoy their retirement years in comfort and security.
Material Information:
Lease - 62 Years Remaining (New lease to be offered on completion)
Service Charge - £2,636.40 Per Year
Ground Rent - £50 Per Year
Council Tax - Band B
Location
Fairlawns
Shoreham-By-Sea, West Sussex, BN43 6BW
- 1
- 1
- 1
Fixed Price £190,000
Leasehold
1 of 8