£550,000

Freehold

Queens Gardens

North Laine, Brighton

  • icon-bedrooms
    2
  • icon-receptions
    1
  • icon-bathrooms
    1

Information

A superbly presented two-bedroom period house in Brighton's vibrant North Laine, boasting open-plan living, a west-facing patio, and offered with no onward chain.

Features

  • Superbly Presented Period House In Brighton's Famous North Laine Location
  • Open Plan Living Space With Access To West Facing Patio Garden
  • Modern Fitted Kitchen With Integrated Appliances
  • Two Double Bedrooms
  • Modern Fitted Bathroom
  • No Onward Chain
  • Gas Central Heating
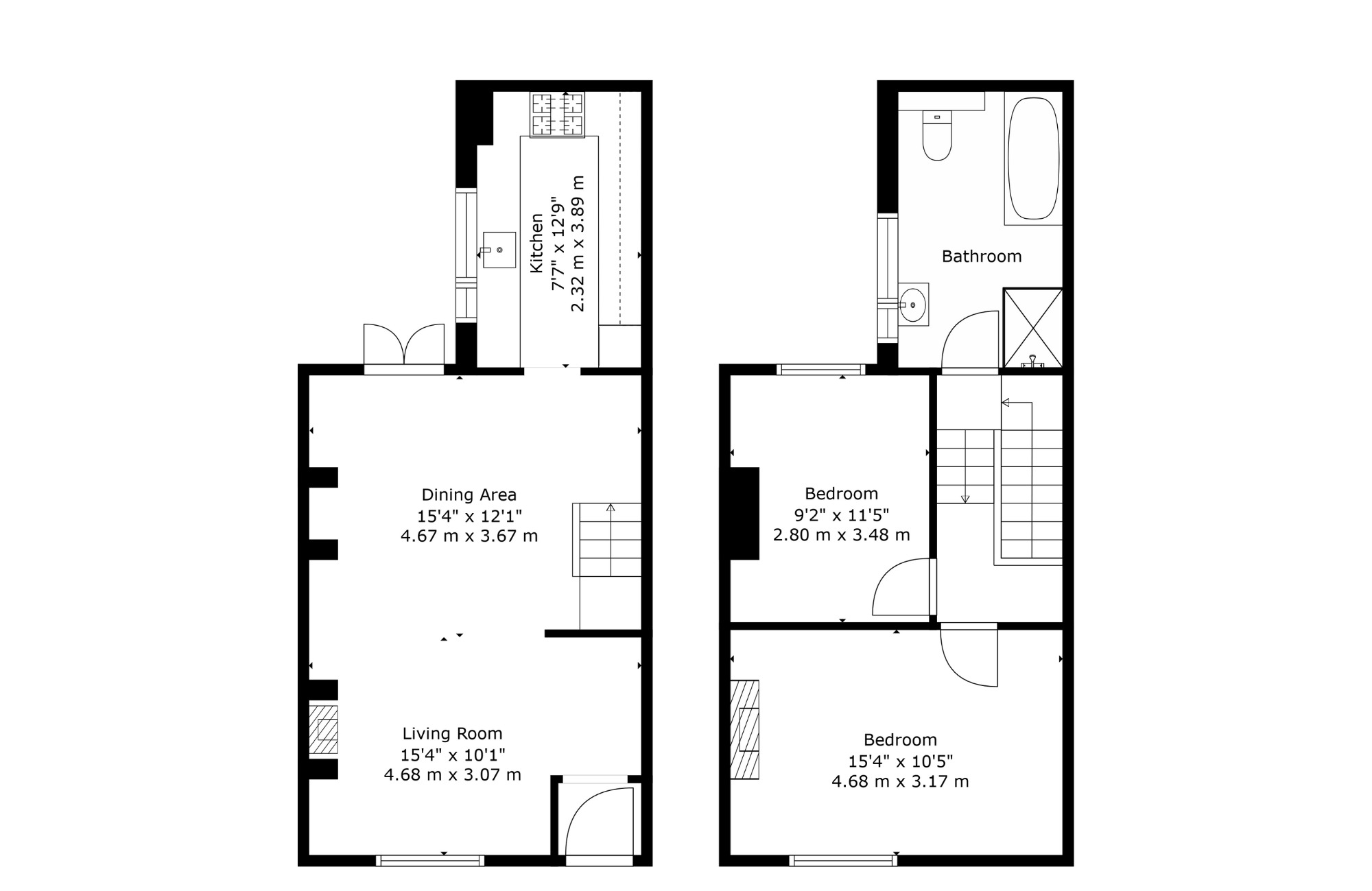
  • 775 sqft
Positioned in the heart of Brighton's highly sought-after North Laine, this superbly presented two-bedroom period house offers an exceptional opportunity for those seeking a vibrant city lifestyle combined with comfortable, modern living. The property, located on the desirable Queens Gardens, is a true gem, perfectly blending historical charm with contemporary finishes, making it an ideal home for first-time buyers, a small family, or as a lucrative investment.
Upon entering, you are immediately greeted by a bright and inviting open-plan living/dining space, thoughtfully designed to maximise both light and functionality. This versatile area provides ample room for both relaxation and dining, creating a seamless flow that is perfect for entertaining guests or enjoying quiet evenings at home. A period style sash window ensures the space is bathed in natural light, enhancing the airy feel. The dining area has direct access to a delightful west-facing patio garden. This private outdoor space offers a wonderful extension of the living space, providing the perfect spot for al fresco dining, morning coffee, or unwinding in the afternoon sun.
The modern fitted kitchen is a testament to thoughtful design and practicality. Equipped with integrated appliances within a sleek and stylish setting. High-quality fixtures and fittings, coupled with ample storage and worktop space, make this kitchen both aesthetically pleasing and highly functional, ensuring a pleasurable culinary experience.
Ascending to the first floor, you will find two generously proportioned double bedrooms. Each bedroom is designed to offer a peaceful retreat, with sufficient space for freestanding furniture and a comfortable ambiance. The neutral decor throughout allows new owners to easily personalise the spaces to their own taste. These bedrooms are served by a modern fitted bathroom, which features contemporary sanitary ware, elegant tiling and panelling, and both a bath and walk-in shower.
Further benefits of this charming property include gas central heating, ensuring warmth and comfort throughout the colder months. The property is offered to the market with no onward chain, simplifying the buying process and allowing for a potentially quicker completion. This is a significant advantage for those looking to move swiftly.
Queens Gardens is renowned for its prime location within the North Laine, an area celebrated for its eclectic mix of independent shops, bohemian cafes, vibrant restaurants, and cultural attractions. Residents can enjoy easy access to Brighton's mainline railway station, providing excellent links to London and beyond, making it an ideal location for commuters. The famous Brighton seafront, with its iconic pier and pebble beaches, is also just a short stroll away, offering endless opportunities for leisure and recreation. This property truly offers the best of Brighton living, combining a fantastic location with a beautifully presented home.

Location